Under Offer £500,000 (Freehold)
Saunderton

Key Features

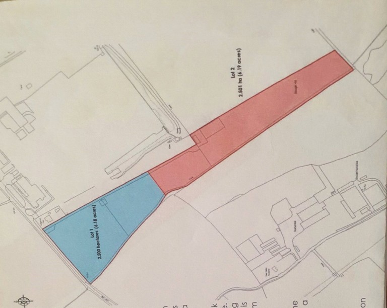
  • Parcel of Land in Excess of 12 Acres
  • WINTER GRAZING ALL YEAR ROUND
  • Stable Blocks
  • FUll SIZE MENAGE
  • Freehold
  • Potential for residential development subject to planning permission.
  • Grassland suitable for grazing horses or livestock.
  • Good road frontage
  • Freehold
  • Available Immediately

Description


A superb Opportunity to acquire Stables and Land of approximately 12 acres in this semi-rural location.

Available as a whole or two lots. WINTER GRAZING ALL YEAR ROUND. Bridal ways with little roadwork. All amenities laid on and INCLUDING FULL SIZE MENAGE- room for transport.

Freehold- VIEWING STRICTLY BY APPOINTMENT

For further details on this property please give our office a call
0208 449 9069

ARRANGE A VIEWING

Book a viewing or enquire about this property

Simply fill out the form below or alternatively call us on 0208 449 9069

* Mandatory fields