Under Offer £500,000 (Freehold)
Wooburn Green, Bucks

Floorplans For Wooburn Green, Bucks

Key Features

  • PIP- planning in principal granted for 2 x 3 bedroom detached houses.
  • Each plot can be purchased for £250,000 or both for £500,000.
  • Fantastic location near the village of Wooburn Green
  • Excellent development opportunity- ideal for a private developer or builder.
  • Close to shops and amenities of Wooburn Green.
  • Within easy Access of Beaconsfield and Bourne End train Stations.
  • Close to the river Wye.
  • Please call to book and appointment to view the site.

Description


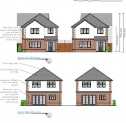
Building plot with PIP (planning in principal) to build 2 x 3 bedroom detached houses in the sought after village of Wooburn Green. Each Plot is £250,000 and BOTH can be purchassed together for £500,000.

Ideal for a private developer or builder looking for a rare opportunity to build in this prime location.

Both houses have PIP for 3 bedrooms, 2 bath/shower rooms, 2 reception rooms, a downstairs wc and off street parking.

Wooburn Green is a lovely village nestled in between Beaconsfield and Bourne End with easy access to transport, shopping facilities and fantastic eateries.

The area is also well know for schooling with a number of good schools close by.

Please call for an appointment to view.

Please note that the pictures are CGI's of what the houses will look like.

For further details on this property please give our office a call
0208 449 9069

ARRANGE A VIEWING

Book a viewing or enquire about this property

Simply fill out the form below or alternatively call us on 0208 449 9069

* Mandatory fields